
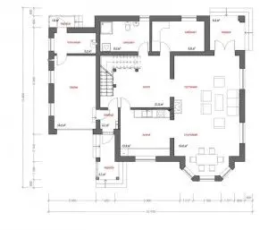
Размер | 13.8 x 15.7 м |
Площадь | 337.9 кв.м |
Тип: Каменный | |
Количество жилых комнат | 6 |
Полное описание:
Общая площадь | — кв.м |
Жилая площадь | 337.9 кв.м |
Габариты здания (длина) | 15.5 м. |
Габариты здания (ширина) | 13.8 м. |
Материал фундамента | — |
Материал стен | — |
Материал перекрытия | — |
Конструкция крыши | — |
Материал кровли | — |
Отделка фасада | — |
Отделка цокольного этажа | — |
Возможность заказать проект в другом материале | Нет |
Этажность | 2 |
Количество жилых комнат | 6 |
Зеркальное отражение | Нет |
Гараж | — |
Подвал | — |
Бассейн | Нет |
Сауна | Нет |
Камин | Нет |
Зимний сад | Нет |
Терраса | Нет |
Комплектация проекта | — |
%%wppa%% %%album=8%% %%size=auto%% %%align=center%%